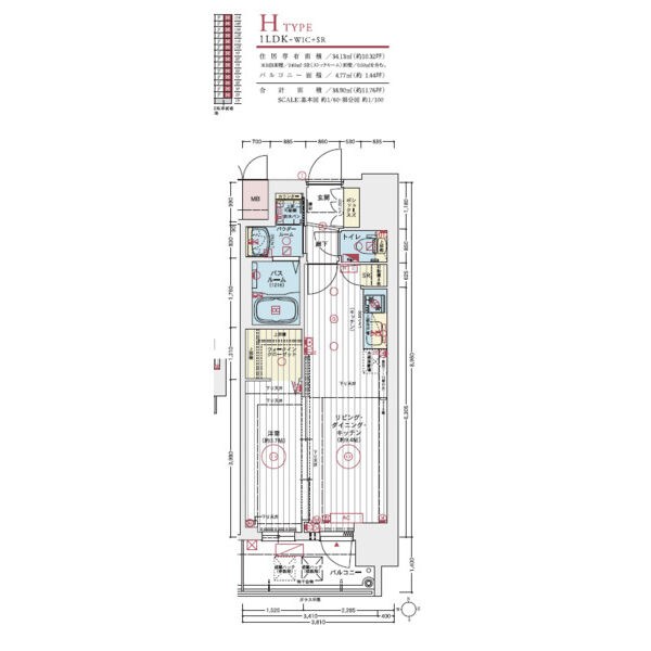
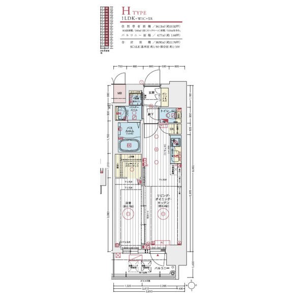
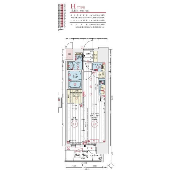
新築特集について
賃貸住宅の中でも、人気が高いのが新築物件です。
新築ですから、内装や外装はピカピカ。
設備も充実しています。
もちろん「まだ誰も居住していない」わけですから、清掃やメンテナンスの状況が気になることもありません。
また不動産にも流行り廃りがありますが、間取りや収納、セキュリティ対策など、「今風」に整っている点も新築物件ならではの特徴です。
快適な住環境を手に入れられる可能性も高いでしょう。
人気の新築物件は、募集から間もなく入居者が決まってしまうケースも多いもの。
いつでも出会えるわけではありません。
新築希望の際には、不動産会社にその旨を伝えて、物件を探してもらうようにしましょう。スタイルエステートでも、数多くの新築物件を取り扱っています。