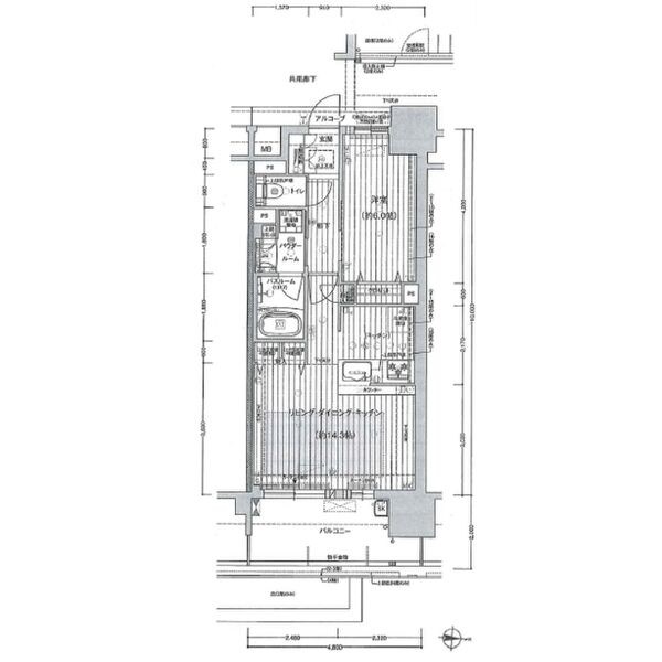
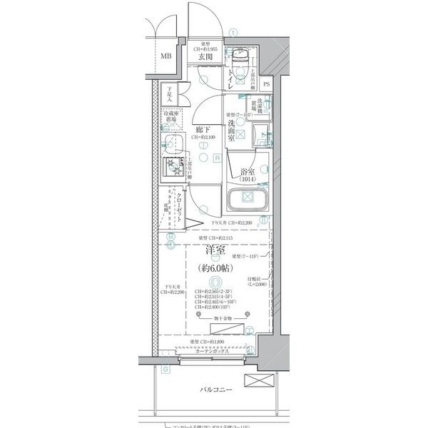
分譲賃貸特集について
もともと購入された分譲物件(マンションなど)が、賃貸物件として貸し出されるケースがあり、これらの物件が「分譲賃貸」と呼ばれています。
転勤などの理由で、オーナーが居住できなくなったり、もともと投資目的で購入された物件であったりと、その理由はさまざまです。
分譲賃貸物件に住むメリットとしては下記が挙げられます。
・耐震性や防音性に優れている物件が多い
・セキュリティ面に配慮された物件が多い
・エントランスなど、共有設備があることも
分譲賃貸物件は、長期間住むことを前提に建てられているため、細部にまでこだわられた物件が多いのも特徴です。加えて、周りを気遣う住民の方が多く、比較的トラブルが起きにくいようです。
「生活の質にこだわりたい」という方は、いちど分譲賃貸物件を検討されてみてはいかがでしょうか。