|
不動産・賃貸・住宅販売
|
宅建免許番号:愛知県知事(2)第22094号 スタイルエステート名古屋駅前支店 |
住所:愛知県名古屋市中村区太閤1丁目22-13恒川ビル 2階 TEL:052-459-0500 FAX:052-459-0518 URL:https://www.oheyasagashi.co.jp |
| 建物名 | プレサンス上前津ディアシス(部屋番号:1007) | ||
|---|---|---|---|
| 賃料 | 12.02万円 (管理費:0万円、共益費:1.233万円) | ||
| 住所 | 愛知県名古屋市中区上前津1丁目 | ||
| 交通 |
名古屋地下鉄鶴舞線上前津駅 徒歩4分 名古屋地下鉄名城線東別院駅 徒歩9分 名古屋地下鉄名城線矢場町駅 徒歩15分 |
||
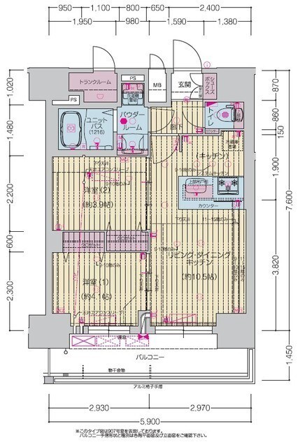
| 外観 | 間取り |
|---|---|
|
|
※図面と異なる場合は現況を優先します。
| 敷礼 | 敷無 礼1ヵ月 | 間取り | 2LDK |
|---|---|---|---|
| 広さ | 44.84m² | 階建て | 10階/15階建 |
| 築年数 | 築-1年 | 種別 | マンション |
| 保証金 | 無 | 保証人 | 不要 |
| 近隣施設 |
スーパー:アミカ大須店(636m) コンビ二:ローソン 中区下前津店(59m) ドラックストア:スギ薬局 上前津店(223m) ホームセンター:DCM 名古屋白金店(1475m) 郵便局:名古屋上前津郵便局(452m) 総合病院:重工大須病院(1107m) |
||
| 間取り詳細 | LDK10.5畳 洋室4畳 洋室3.9畳 | 構造 | 鉄筋コンクリート |
| 損保 | 有 | 駐車場 | 有(敷地内) 有料20,000円〜 |
| 入居 | '26年01月下旬 | 取引態様 | 仲介先物 |
| 総戸数 | 238戸 | 保証人代行 | 必須 |
| 条件 | 法人可/二人入居可/単身可 | ||
| 特徴 | 分譲タイプ、5階建以上、エレベータ、宅配ボックス、角住戸(角地)、2F以上、フローリング、全居室フローリング、室内洗濯機置場、TVインターホン、光ファイバー、ネット使用料不要、システムキッチン、カウンターキッチン、対面式キッチン、ガスキッチン、ガスコンロ、2口コンロ、3口以上コンロ、給湯、ガス給湯、3点給湯、バス・トイレ別、シャンプードレッサー、バス有、シャワー、脱衣所、浴室乾燥、トイレ有、温水洗浄便座、暖房便座、洗面台、洗面化粧台、縦型照明付洗面化粧台、洗面所、洗面所独立、洗面所にドア、エアコン、冷房、暖房、24時間換気システム、収納有、路面電車沿線 | ||
| 備考 | |||
更新日:2025年10月12日 物件コード:576060