名古屋の賃貸(賃貸マンション・アパート)はスタイルエステート

オーナー様はこちら
更新 03/04に物件情報が更新されました

FLAT御器所

7.6万円
(管理費0万円・共益費0.5万円)

☆デザイナーマンション☆

スーパー徒歩圏内で買い物便利です♪インターネット使用料無料でコスパ◎

賃料7.6万円

(管理費:0万円、共益費:0.5万円)

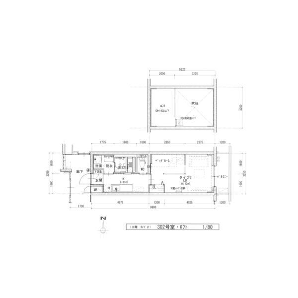
敷礼 敷無 礼1ヵ月 間取り 1SLDK
広さ 31.34m2 階建て 2階/3階建
築年数 築0年 種別 マンション
保証金 1ヵ月解約時 保証人 不要

物件の所在地

住所 愛知県名古屋市昭和区塩付通4丁目
交通 名古屋地下鉄鶴舞線御器所駅 徒歩8分 名古屋地下鉄桜通線桜山駅 徒歩14分 名古屋地下鉄東山線池下駅 徒歩34分
近隣施設

スーパー:マックスバリュ御器所店(281m)

コンビ二:ファミリーマート 昭和石仏町店(396m)

ドラックストア:ドラッグスギヤマ 塩付通店(352m)

ショッピング施設:フィールシャンピアポート(2478m)

郵便局:名古屋石仏郵便局(513m)

総合病院:立松医院(1235m)

この物件の特徴

  • デザイナーズ
  • 宅配ボックス
  • メールボックス
  • 敷地内ゴミ置き場
  • 最上階
  • 上階無し
  • 2F以上
  • ロフト付
  • フローリング
  • 洗濯機置場
  • 室内洗濯機置場
  • インターホン
  • TVインターホン
  • 高速ネット対応
  • 光ファイバー
  • ネット使用料不要
  • 2口コンロ
  • IHクッキングヒーター
  • 給湯
  • ガス給湯
  • 3点給湯
  • バス・トイレ別
  • シャンプードレッサー
  • バス有
  • シャワー
  • 脱衣所
  • 浴室乾燥
  • トイレ有
  • 温水洗浄便座
  • 暖房便座
  • 洗面化粧台
  • 洗面所
  • 洗面所独立
  • 洗面所にドア
  • エアコン
  • 冷房
  • 暖房
  • 収納有
  • クロゼット
  • シューズボックス
  • ダウンライト

物件概要

間取り詳細 - 構造 鉄筋コンクリート
階建 2階/3階建 築年数 築0年
損保 駐車場 近隣駐車場 有料16,500円〜
入居 '26年03月上旬 取引態様 仲介先物
条件 法人可/二人入居可/単身可
取扱店舗
物件コード
626336
総戸数 9戸
保証人代行 -
備考 スーパー徒歩圏内で買い物便利です♪インターネット使用料無料でコスパ◎

CONTACT USこの物件にお問い合わせ

空室確認をしたい、この物件を見学したいなど、
お気軽にお問い合わせください!

お問い合わせ種別必須
お名前必須
メールアドレス必須
電話番号
お問い合わせ内容

この物件に似た他の物件を探す