名古屋の賃貸(賃貸マンション・アパート)はスタイルエステート

オーナー様はこちら

プレサンスレイズ茶屋ヶ坂

8万円
(管理費0万円・共益費1万円)

★お部屋探しはスタイルエステート東支店へ★

急なお引越し、初めてのお独り暮らし、ご転勤、お部屋探しの際は、まずスタイルエステート東支店へ!!スタッフ一同、心よりお客様からのお問合せお待ちしております!!

賃料8万円

(管理費:0万円、共益費:1万円)

敷礼 敷無 礼1ヵ月 間取り 1LDK
広さ 32.39m2 階建て 2階/10階建
築年数 築1年 種別 マンション
保証金 保証人 不要

物件の所在地

住所 愛知県名古屋市千種区茶屋坂通2丁目
交通 名古屋地下鉄名城線茶屋ヶ坂駅 徒歩7分 名古屋地下鉄名城線砂田橋駅 徒歩13分 名古屋地下鉄名城線自由ヶ丘(愛知)駅 徒歩19分
近隣施設

スーパー:マックスバリュ砂田橋店(821m)

スーパー:コノミヤ砂田橋店(835m)

スーパー:アピタ 千代田橋店(1240m)

コンビ二:セブンイレブン 名古屋茶屋が坂店(174m)

コンビ二:ファミリーマート 千種天満通店(562m)

コンビ二:ローソン 東区大幸四丁目店(1010m)

この物件の特徴

  • デザイナーズ
  • 5階建以上
  • エレベータ
  • 宅配ボックス
  • メールボックス
  • 敷地内ゴミ置き場
  • 2F以上
  • 室内洗濯機置場
  • TVインターホン
  • 光ファイバー
  • システムキッチン
  • ガスキッチン
  • ガスコンロ
  • 2口コンロ
  • グリル
  • 給湯
  • ガス給湯
  • 3点給湯
  • バス・トイレ別
  • シャンプードレッサー
  • バス有
  • シャワー
  • 脱衣所
  • 浴室乾燥
  • トイレ有
  • 温水洗浄便座
  • 暖房便座
  • 縦型照明付洗面化粧台
  • 洗面所
  • 洗面所独立
  • 洗面所にドア
  • エアコン
  • 冷房
  • 暖房
  • 24時間換気システム
  • 収納有
  • クロゼット
  • シューズボックス
  • モニタ付オートロック
  • ガスコンロ設置済

物件概要

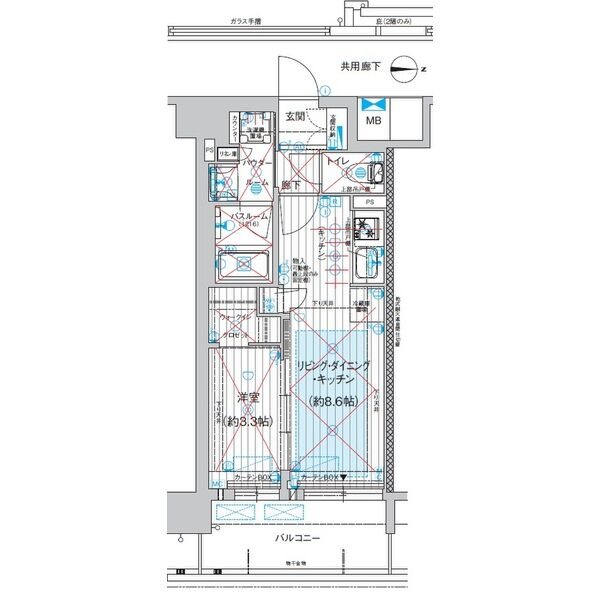
間取り詳細 LDK8.6畳 洋室3畳 構造 鉄筋コンクリート
階建 2階/10階建 築年数 築1年
損保 駐車場 近隣駐車場 有料13,200円〜
入居 即時 取引態様 仲介先物
条件 法人可/二人入居可/ペット相談/単身可
取扱店舗
物件コード
545227
総戸数 36戸
保証人代行 -
備考 急なお引越し、初めてのお独り暮らし、ご転勤、お部屋探しの際は、まずスタイルエステート東支店へ!!スタッフ一同、心よりお客様からのお問合せお待ちしております!!

CONTACT USこの物件にお問い合わせ

空室確認をしたい、この物件を見学したいなど、
お気軽にお問い合わせください!

お問い合わせ種別必須
お名前必須
メールアドレス必須
電話番号
お問い合わせ内容

この物件に似た他の物件を探す