総合金山駅徒歩圏内 無料Wi-Fi
オートロック・宅配BOX付!インターネット・Wi-Fi無料!!LINE・メール・お電話でやり取り可能!名古屋でのお部屋探しはスタイルエステート西支店にお任せ下さい☆現地・最寄り駅でのお待ち合わせも可能です☆名古屋市内地域問わず、お客様に最適のお部屋をご紹介いたします☆メール・お電話でお気軽にお問合せ下さい。
賃料7.72万円
(管理費:0万円、共益費:1万円)
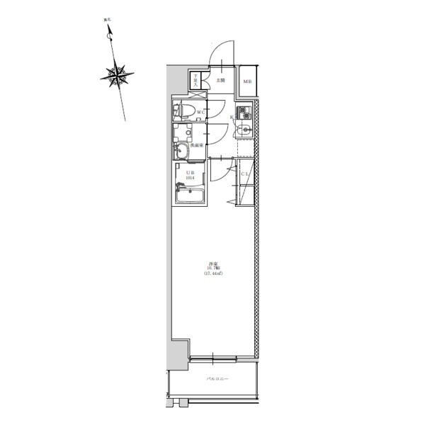
| 敷礼 | 敷無 礼1ヵ月 | 間取り | 1K |
|---|---|---|---|
| 広さ | 29.97m2 | 階建て | 13階/15階建 |
| 築年数 | 築0年 | 種別 | マンション |
| 保証金 | 無 | 保証人 | 不要 |




















CONTACT US