賃料6.35万円
(管理費:0万円、共益費:0.8万円)
| 敷礼 | 敷無 礼無 | 間取り | 1K |
|---|---|---|---|
| 広さ | 24.30m2 | 階建て | 4階/15階建 |
| 築年数 | 築0年 | 種別 | マンション |
| 保証金 | 無 | 保証人 | 不要 |
名古屋の賃貸(賃貸マンション・アパート)はスタイルエステート
オーナー様はこちら賃料6.35万円
(管理費:0万円、共益費:0.8万円)
| 敷礼 | 敷無 礼無 | 間取り | 1K |
|---|---|---|---|
| 広さ | 24.30m2 | 階建て | 4階/15階建 |
| 築年数 | 築0年 | 種別 | マンション |
| 保証金 | 無 | 保証人 | 不要 |
| 住所 | 愛知県名古屋市西区新道1丁目 |
|---|---|
| 交通 | 名古屋地下鉄鶴舞線浅間町駅 徒歩2分 名古屋地下鉄鶴舞線浄心駅 徒歩15分 名古屋地下鉄桜通線丸の内(名古屋市営駅 徒歩18分 |
| 近隣施設 | スーパー:FEEL(フィール) 花の木店(569m) コンビ二:ファミリーマート 浅間町駅前店(183m) ドラックストア:ツルハドラッグ 浅間町店(167m) ホームセンター:HANDS(ハンズ) 名古屋店(1895m) 郵便局:名古屋江川郵便局(377m) 総合病院:名城病院(1177m) |
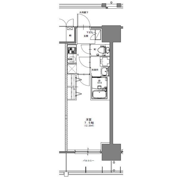
| 間取り詳細 | 洋室7.5畳 | 構造 | 鉄筋コンクリート |
|---|---|---|---|
| 階建 | 4階/15階建 | 築年数 | 築0年 |
| 損保 | 有 | 駐車場 | 有(敷地内) 有料16,500円〜 |
| 入居 | 即時 | 取引態様 | 仲介先物 |
| 条件 | 法人可/単身可 | ||
| 取扱店舗 物件コード |
444192 | ||
| 総戸数 | 84戸 | ||
| 保証人代行 | 必須 | ||
| 備考 | |||
CONTACT USこの物件にお問い合わせ空室確認をしたい、この物件を見学したいなど、
お気軽にお問い合わせください!

02/23更新!
愛知県名古屋市西区新道2丁目
名古屋地下鉄鶴舞線浅間町駅 徒歩5分名古屋地下鉄桜通線国際センター(愛知)駅 徒歩10分名古屋地下鉄鶴舞線丸の内(名古屋市営駅 徒歩13分
築17年 13階建

02/13更新!
愛知県名古屋市西区新道1丁目
名古屋地下鉄鶴舞線浅間町駅 徒歩3分名古屋地下鉄鶴舞線浄心駅 徒歩12分名古屋地下鉄桜通線国際センター(愛知駅 徒歩15分
築12年 2階建

01/22更新!
愛知県名古屋市西区新道2丁目
名古屋地下鉄鶴舞線浅間町駅 徒歩7分名古屋地下鉄桜通線国際センター(愛知)駅 徒歩12分名古屋地下鉄東山線名古屋駅 徒歩13分
築11年 4階建

02/23更新!
愛知県名古屋市西区新道2丁目
名古屋地下鉄鶴舞線浅間町駅 徒歩5分名古屋地下鉄桜通線国際センター(愛知)駅 徒歩10分名古屋地下鉄鶴舞線丸の内(名古屋市営駅 徒歩13分
築17年 13階建

06/26更新!
愛知県名古屋市西区新道1丁目
名古屋地下鉄鶴舞線浅間町駅 徒歩3分名古屋地下鉄鶴舞線浄心駅 徒歩12分名古屋地下鉄桜通線国際センター(愛知駅 徒歩15分
築12年 2階建

02/13更新!
愛知県名古屋市西区新道1丁目
名古屋地下鉄鶴舞線浅間町駅 徒歩3分名古屋地下鉄鶴舞線浄心駅 徒歩12分名古屋地下鉄桜通線国際センター(愛知駅 徒歩15分
築12年 2階建