名古屋の賃貸マンション・アパートはスタイルエステート

S-RESIDENCE浅間町駅前axial

物件の所在地

住所 愛知県名古屋市西区新道1丁目
交通

名古屋地下鉄鶴舞線浅間町駅 徒歩2分

名古屋地下鉄鶴舞線浄心駅 徒歩15分

名古屋地下鉄桜通線丸の内(名古屋市営駅 徒歩18分

近隣施設

スーパー:FEEL(フィール) 花の木店(569m)

コンビ二:ファミリーマート 浅間町駅前店(183m)

ドラックストア:ツルハドラッグ 浅間町店(167m)

ホームセンター:HANDS(ハンズ) 名古屋店(1895m)

郵便局:名古屋江川郵便局(377m)

総合病院:名城病院(1177m)

この物件の特徴

  • デザイナーズ
  • 5階建以上
  • エレベータ
  • 宅配ボックス
  • メールボックス
  • 敷地内ゴミ置き場
  • 2F以上
  • フローリング
  • 全居室フローリング
  • 室内洗濯機置場
  • TVインターホン
  • 光ファイバー
  • ネット使用料不要
  • システムキッチン
  • ガスキッチン
  • ガスコンロ
  • 2口コンロ
  • 給湯
  • ガス給湯
  • 3点給湯
  • バス・トイレ別
  • シャンプードレッサー
  • バス有
  • シャワー
  • 脱衣所
  • 浴室乾燥
  • トイレ有
  • 温水洗浄便座
  • 暖房便座
  • 洗面台
  • 洗面化粧台
  • 縦型照明付洗面化粧台
  • 洗面所
  • 洗面所独立
  • 洗面所にドア
  • エアコン
  • 冷房
  • 暖房
  • 24時間換気システム
  • 収納有
  • クロゼット
  • シューズボックス
  • 路面電車沿線

物件概要

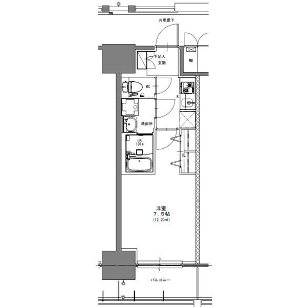
間取り詳細 洋室7.5畳 構造 鉄筋コンクリート
階建 7階/15階建 築年数 築0年
損保 駐車場 有(敷地内) 有料16,500円〜
入居 即時 取引態様 仲介先物
条件 法人可/単身可
取扱店舗
物件コード
444178
総戸数 84戸
保証人代行 必須
備考

CONTACT USこの物件にお問い合わせ

空室確認をしたい、この物件を見学したいなど、
お気軽にお問い合わせください!

お問い合わせ種別必須
お名前必須
メールアドレス必須
電話番号
お問い合わせ内容

この物件に似た他の物件を探す

SouthValley浅間 0412

01/22更新!

SouthValley浅間 0412

愛知県名古屋市西区新道2丁目

名古屋地下鉄鶴舞線浅間町駅 徒歩7分名古屋地下鉄桜通線国際センター(愛知)駅 徒歩12分名古屋地下鉄東山線名古屋駅 徒歩13分

築10年 4階建

賃料
敷金/礼金
間取り/専有面積
SouthValley浅間 0412
1階
6万円
保1ヵ月
礼1ヵ月
1K(29.11m2)
SouthValley浅間

10/05更新!

SouthValley浅間

愛知県名古屋市西区新道2丁目

名古屋地下鉄鶴舞線浅間町駅 徒歩6分名古屋地下鉄桜通線国際センター(愛知)駅 徒歩11分名古屋地下鉄東山線名古屋駅 徒歩12分

築10年 4階建

賃料
敷金/礼金
間取り/専有面積
SouthValley浅間
2階
5.7万円
敷無
礼無
1K(24.88m2)
ホワイトベース(ホワイトベース)

01/08更新!

ホワイトベース(ホワイトベース)

愛知県名古屋市西区新道1丁目

名古屋地下鉄鶴舞線浅間町駅 徒歩3分名古屋地下鉄鶴舞線浄心駅 徒歩12分名古屋地下鉄桜通線国際センター(愛知駅 徒歩15分

築12年 2階建

賃料
敷金/礼金
間取り/専有面積
ホワイトベース(ホワイトベース)
1階
5.5万円
敷無
礼1ヵ月
1K(20.27m2)
ラヴィアンローズ 0903

02/23更新!

ラヴィアンローズ 0903

愛知県名古屋市西区新道2丁目

名古屋地下鉄鶴舞線浅間町駅 徒歩5分名古屋地下鉄桜通線国際センター(愛知)駅 徒歩10分名古屋地下鉄鶴舞線丸の内(名古屋市営駅 徒歩13分

築17年 13階建

賃料
敷金/礼金
間取り/専有面積
ラヴィアンローズ 0903
10階
6万円
敷1ヵ月
礼1ヵ月
1R(23.17m2)
ラヴィアンローズ 1215

02/23更新!

ラヴィアンローズ 1215

愛知県名古屋市西区新道2丁目

名古屋地下鉄鶴舞線浅間町駅 徒歩5分名古屋地下鉄桜通線国際センター(愛知)駅 徒歩10分名古屋地下鉄鶴舞線丸の内(名古屋市営駅 徒歩13分

築17年 13階建

賃料
敷金/礼金
間取り/専有面積
ラヴィアンローズ 1215
9階
5.7万円
敷1ヵ月
礼1ヵ月
1K(23.17m2)
ホワイトベース (ホワイトベース)

02/13更新!

ホワイトベース (ホワイトベース)

愛知県名古屋市西区新道1丁目

名古屋地下鉄鶴舞線浅間町駅 徒歩3分名古屋地下鉄鶴舞線浄心駅 徒歩12分名古屋地下鉄桜通線国際センター(愛知駅 徒歩15分

築12年 2階建

賃料
敷金/礼金
間取り/専有面積
ホワイトベース (ホワイトベース)
1階
5.5万円
敷無
礼1ヵ月
1SK(20.27m2)