お部屋探しはスタイルエステート西支店へ
インターネット使用料不要なので面倒な手続き不要です◎設備充実なのではじめてのお引越しや転勤者にもオススメ。LINE・メール・お電話でやり取り可能!名古屋でのお部屋探しはスタイルエステート西支店にお任せ下さい☆現地・最寄り駅でのお待ち合わせも可能です☆名古屋市内地域問わず、お客様に最適のお部屋をご紹介いたします☆
賃料6.75万円
(管理費:0万円、共益費:0.487万円)
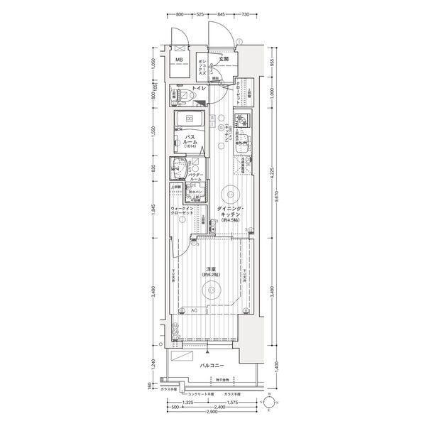
| 敷礼 | 敷無 礼無 | 間取り | 1DK |
|---|---|---|---|
| 広さ | 28.04m2 | 階建て | 10階/15階建 |
| 築年数 | 築0年 | 種別 | マンション |
| 保証金 | 無 | 保証人 | 不要 |





















CONTACT US









