★ペット飼育可能な賃貸物件★
小型犬又は猫2匹まで飼育可!ペット飼育時、1匹につき敷金がプラス1ヶ月、家賃がプラス100円になります。
賃料6.33万円
(管理費:0万円、共益費:1万円)
| 敷礼 | 敷無 礼無 | 間取り | 1K |
|---|---|---|---|
| 広さ | 25.50m2 | 階建て | 2階/15階建 |
| 築年数 | 築1年 | 種別 | マンション |
| 保証金 | 無 | 保証人 | 不要 |
名古屋の賃貸(賃貸マンション・アパート)はスタイルエステート
オーナー様はこちら★ペット飼育可能な賃貸物件★
小型犬又は猫2匹まで飼育可!ペット飼育時、1匹につき敷金がプラス1ヶ月、家賃がプラス100円になります。
賃料6.33万円
(管理費:0万円、共益費:1万円)
| 敷礼 | 敷無 礼無 | 間取り | 1K |
|---|---|---|---|
| 広さ | 25.50m2 | 階建て | 2階/15階建 |
| 築年数 | 築1年 | 種別 | マンション |
| 保証金 | 無 | 保証人 | 不要 |
| 住所 | 愛知県名古屋市北区稚児宮通2丁目 |
|---|---|
| 交通 | 名古屋地下鉄名城線志賀本通駅 徒歩8分 名古屋地下鉄名城線黒川(愛知)駅 徒歩10分 名鉄瀬戸線尼ヶ坂駅 徒歩22分 |
| 近隣施設 | スーパー:FEEL(フィール) 黒川東店(511m) コンビ二:セブンイレブン 名古屋龍ノ口町1丁目(295m) ドラックストア:V・drug 辻本通店(226m) 総合病院:名古屋市医師会 北区休日急病診療所(1195m) 郵便局:名古屋若葉通郵便局(817m) ホームセンター:DCM 瑠璃光店(832m) |
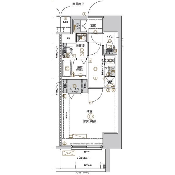
| 間取り詳細 | 洋室6.9畳 | 構造 | 鉄筋コンクリート |
|---|---|---|---|
| 階建 | 2階/15階建 | 築年数 | 築1年 |
| 損保 | 有 | 駐車場 | 有(敷地内) 有料5,000円〜 |
| 入居 | 即時 | 取引態様 | 仲介先物 |
| 条件 | 法人可/ペット相談/単身可 | ||
| 取扱店舗 物件コード |
343200 | ||
| 総戸数 | 42戸 | ||
| 保証人代行 | 必須 | ||
| 備考 | 小型犬又は猫2匹まで飼育可!ペット飼育時、1匹につき敷金がプラス1ヶ月、家賃がプラス100円になります。 | ||
CONTACT USこの物件にお問い合わせ空室確認をしたい、この物件を見学したいなど、
お気軽にお問い合わせください!

02/13更新!
愛知県名古屋市北区稚児宮通1丁目
名古屋地下鉄名城線志賀本通駅 徒歩5分名古屋地下鉄名城線黒川(愛知)駅 徒歩7分名古屋地下鉄名城線平安通駅 徒歩15分
築14年 2階建

06/17更新!
愛知県名古屋市北区稚児宮通1丁目
名古屋地下鉄名城線志賀本通駅 徒歩5分名古屋地下鉄名城線黒川(愛知)駅 徒歩7分名古屋地下鉄名城線平安通駅 徒歩15分
築14年 2階建

02/13更新!
愛知県名古屋市北区稚児宮通1丁目
名古屋地下鉄名城線志賀本通駅 徒歩5分名古屋地下鉄名城線黒川(愛知)駅 徒歩7分名古屋地下鉄名城線平安通駅 徒歩15分
築14年 2階建

06/17更新!
愛知県名古屋市北区稚児宮通1丁目
名古屋地下鉄名城線志賀本通駅 徒歩5分名古屋地下鉄名城線黒川(愛知)駅 徒歩5分名鉄瀬戸線尼ヶ坂駅 徒歩18分
築10年 2階建